Vente Appartement - Paris 14ème Plaisance
VUES DÉGAGÉES SUR JARDINS – À DEUX PAS DE MONTPARNASSE
Idéalement situé à seulement 2 minutes de la Gare Montparnasse, au 6ème étage avec ascenseur d'un immeuble conçu par l'architecte Jean Dubuisson, découvrez ce superbe appartement traversant de 84,73 m2 Loi Carrez, bénéficiant d’une vue dégagée et verdoyante sur jardins.
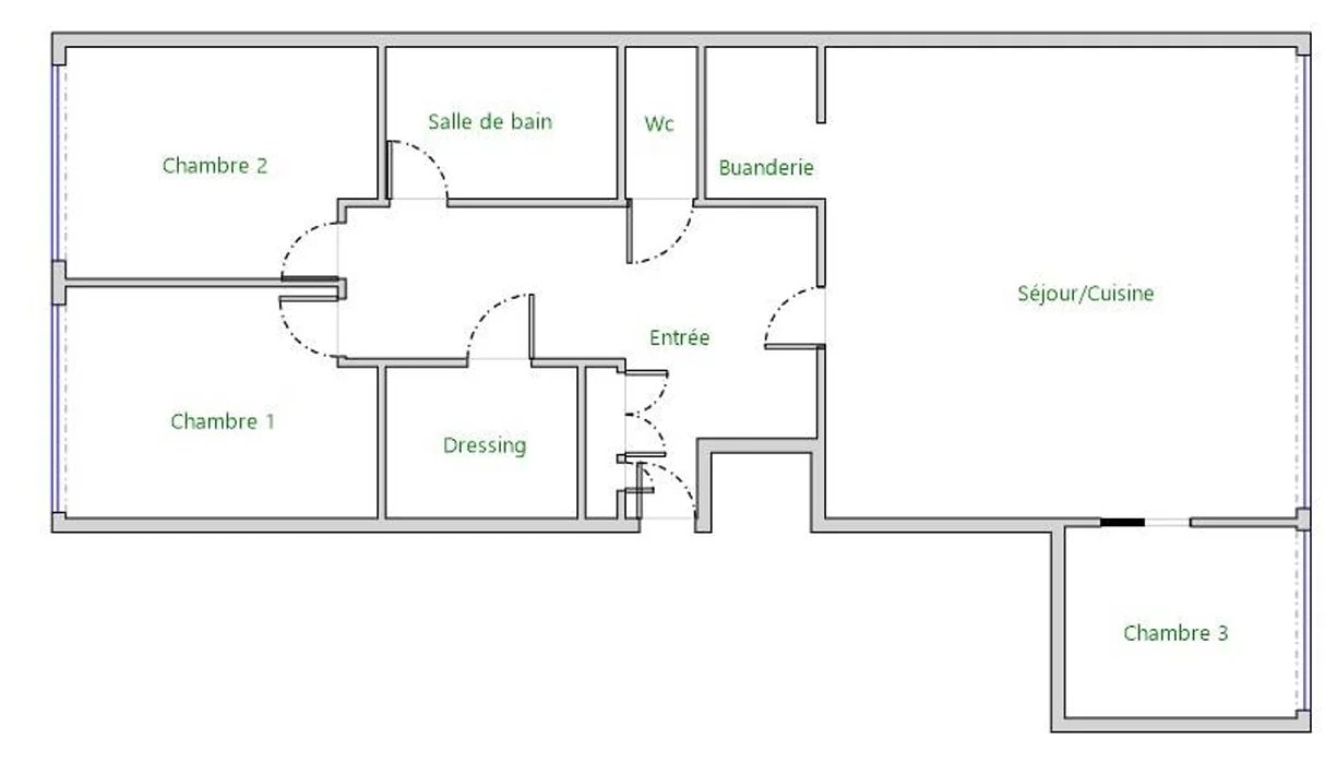
L'appartement offre un séjour spacieux et baigné de lumière, prolongé par une cuisine ouverte avec ilot central, créant un espace de vie convivial et contemporain. Il se compose également de 3 chambres, d'une salle de bain, d'un grand dressing, d'un WC indépendant ainsi que d'une buanderie, offrant un agencement particulièrement fonctionnel.
Une cave complète ce bien. Possibilité d'acquérir une place de parking en supplément.
Ses principaux atouts : luminosité exceptionnelle, baies vitrées, traversant, vue dégagée sur jardin, calme, plan optimisé, emplacement recherché.
Bien rare sur le secteur, à visiter sans tarder !
Résumé
- Pièces 4 pièces
- Surface 85 m²
- Chauffage Collectif
- Etage 6ème
Prestations
- Ascenseur
- Concierge
- Gardien
- Interphone
- Vidéophone
Pièces
- 1 Séjour/cuisine
- 3 Chambres
- 1 Cave
- 1 Parking
- 1 Salle de bains
- 1 Toilettes
Efficacité énergétique
Informations légales
- Honoraires à charge vendeur
- Taxe foncière1 693 €
- Charges de copropriété495 € / Mois
- Loi Carrez84.73 m²
- Pas de procédure en cours
